Oficina
 Sector Metro Pedro de Valdivia, Providencia



CONTACTA A UN EJECUTIVO
ENVIAR  
DESCRIPCIÓN DE LA PROPIEDAD
Superficie Total
153 m2
Privados
3
Estacionamientos
1
 

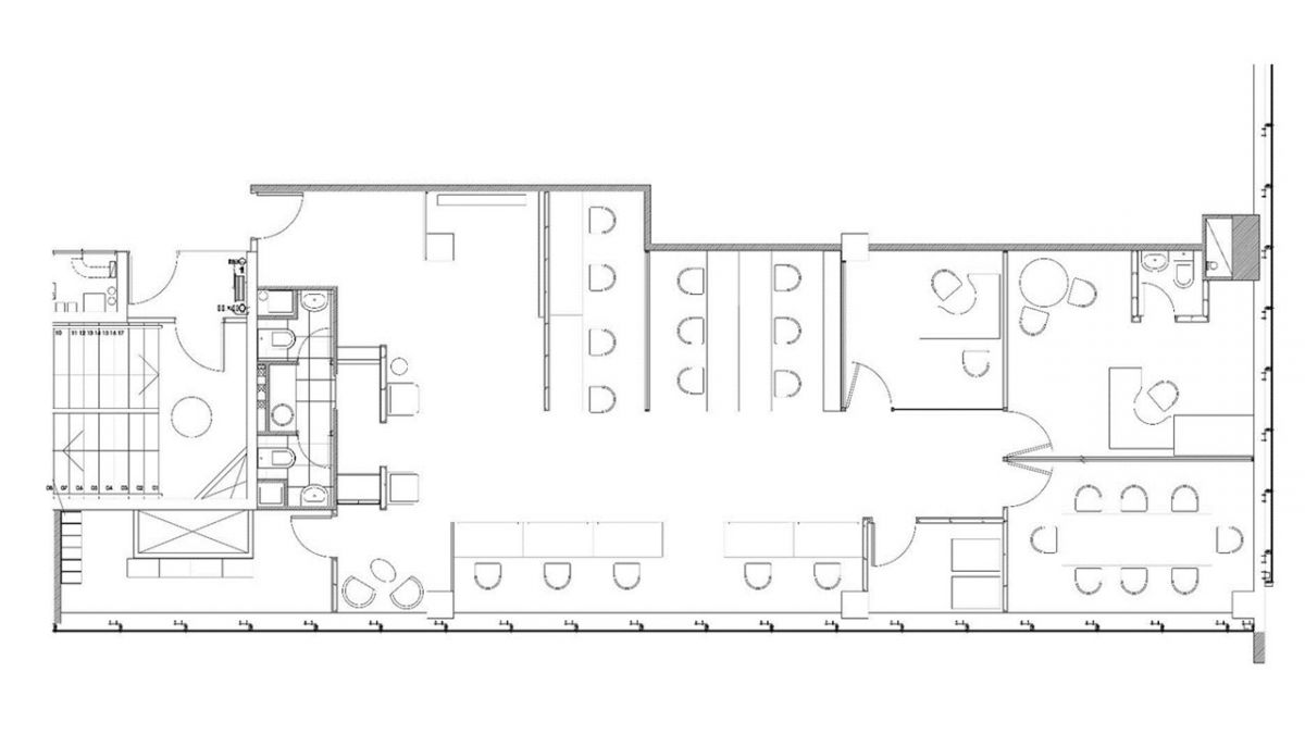
Edificio ubicado estratégicamente en Providencia, con excelente accesibilidad a estaciones de metro y avenidas principales. Edificio con certificación Leed Gold. 11 pisos, 4 ascensores. Oficina de 153,31 m². habilitada con 3 privados, sala de reuniones, área libre para estaciones de trabajo. Gasto común UF 0.1 x m2 app. Estacionamientos a UF 3,5 cada uno. . Bodegas a UF 0,25/m². . Valores mas IVA.

CÓDIGO 34075

CONTACTA A UN EJECUTIVO
ENVIAR  

PROPIEDADES

  Sector Metro Pedro de Valdivia
599 m2 Útiles | 1 privados
 
0,40 UF/m²

 
  Sector Metro Pedro de Valdivia
557 m2 Útiles | 6 privados
 
0,42 UF/m²

 
  Sector Metro Pedro de Valdivia
255 m2 Útiles | 4 privados
 
0,38 UF/m²

 
  Sector Metro Los Leones / Andrés Bello
277 m2 Útiles | 4 privados
 
0,48 UF/m²